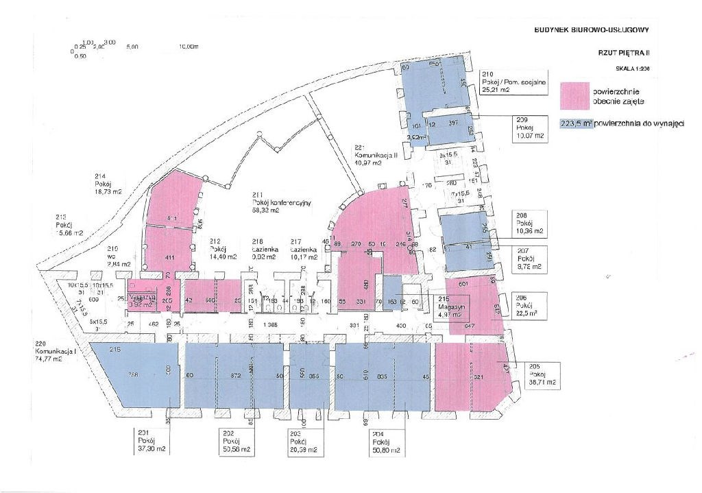
Opis
Biurowiec z 2011 r. posiada powierzchnie biurowe na 4 kondygnacjach naziemnych, a także ok. 100 miejsc postojowych. Oferta wynajmu obejmuje powierzchnię o metrażu 360 mkw z możliwością wynajmu 20 miejsc postojowych., Budynek w standardzie B+ oferuje:
- klimatyzację,
- wentylację,
- alarm ppoż.,
- czujniki dymu,
- czujniki ruchu,
- łącze światłowodowe,
Okablowanie:
- elektryczne,
- komputerowe,
- telefoniczne,
Dodatkowo budynek posiada : otwierane okna,podwieszane sufity, podniesione podłogi, wykładzinę, kontrolę dostępu, ochronę całodobową.
Biurowiec ma dogodną lokalizację, pozwalającą na sprawne połączenia z centrum miasta (ok. 4 km) oraz z trasami szybkiego ruchu – obwodnica Lublina (E372 – ok. 4 km). W odległości ok. 13 km znajduje się port lotniczy w Świdniku. W bliskiej odległości od biurowca znajdują się centra handlowe: Galeria Atrium Felicity (3 km) i Galeria Lubelska (0,2 km) oraz Makro Cash & Carry (0,3 km).
Komunikację miejską zapewniają linie autobusowe nr 1, 14, 36, 55, N2, przystanek znajduje się w odległości 100m od budynku.
Cena: 44zł/mkw netto + opłata za energię elektryczną wg zużycia
Opłata dodatkowa: service charge 13zł/mkw






















